Do you have any questions?

LA BELLE CR

Art. No. 5882

Building instruction

Exploded drawing

Assembly

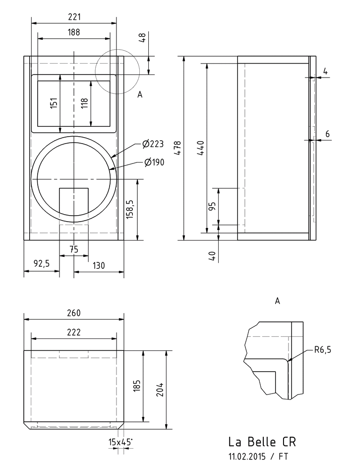
Once the front panel has been shaped with all the necessary bevels, openings and milled shapes, and the terminal port has been completed at the rear, the base, lid, sides and rear wall are glued together.

The front panel is positioned from the front.

Inner damping

One mat is used to cover the entire rear wall, the second is folded down the middle and positioned behind the tweeter with the fold pointing towards the lid. This means there are three layers of damping materialbehind the tweeter and one behind the B 200 - 6 Ohm.

Cabinet parts list for 1 box

Parts
Size (mm)
Quantity
Material: 19 mm chipboard or MDF
Front panel
260 x 478
1
Side panels
185 x 440
2
Top / bottom panel
185 x 260
2
Rear panel
440 x 222
1

Crossover

Do you have any questions?

Contact us