Do you have any questions?

VOX 200 LIGHT

Building instruction

Exploded drawing

Assembly

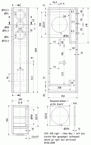
At first sight, the construction of the VOX 200 LIGHT looks complicated, which is why it is worth looking at each internal part individually first. In the lower part of the cabinet, you can see the bass reflex tunnel, made up of the base, one horizontal and one vertical upper board. In the middle, there are two cross-reinforcements to prevent resonance. At the top of the cabinet, behind the cut-out in the acoustic baffle for the mid- to high-range unit, is the enclosure required for the mid-range cone, made up of two wooden boards. Three holes will have to be drilled in the rear wall of the mid-range chamber for the cables. These holes must be well sealed up at the end. 

Fitting the W 200 S into the side is a special feature. Behind the square cut-outs in the side walls, the mounting board for the W 200 S is glued in place from within. This means that the bass driver can be sunken by 19 mm (19 mm = thickness of the boards). For optical reasons, and to enable the cloth-covered frame to be fitted exactly in place, the side-wall cut-out must be made extremely accurately. The frame can be made from a 12 mm board, in which a 205 mm diam. cut-out is made. 

The outer dimensions of the frame should be 1 - 2 mm smaller than the opening in the side-wall all round. In this way, the frame is jammed in place by the fabric used to cover it and alternative fixing methods (wooden plugs) are not necessary. The frequency crossover unit is mounted on the side-wall behind the bass cut-out.

Inner damping

The inner damping uses one mat placed inside the medium range cabinet. The remainder is evenly distributed throughout the cabinet. Only the space above the tunnel opening (to the rear of the baffle) up to the lowest stiffener remains empty. If, as a result of the acoustics in the room, the low-range bass is too powerful, it is possible to fill this space as well up to the tunnel opening to lower the bass power.

Cabinet parts list for 1 box

Parts
Size (mm)
Quantity
Material: 19 mm chipboard or MDF
Front panel
1000 x 200
1
Rear panel
902 x 162
1
Side panel
1000 x 331
2
Top and bottom panel
331 x 162
2
Midrange rear panel
399 x 162
1
Midrange bottom panel
60 x 162
1
Brace
80 x 162
2
Bass-reflex channel
230 x 162
1
Bass-reflex channel
70 x 162
1
Mounting board woofer
300 x 233
1
Material: 12 mm chipboard or MDF
Grille board
232 x 232
1

Crossover

Do you have any questions?

Contact us