Do you have any questions?

SOLO Eckbox

Building instruction

Exploded drawing

Assembly

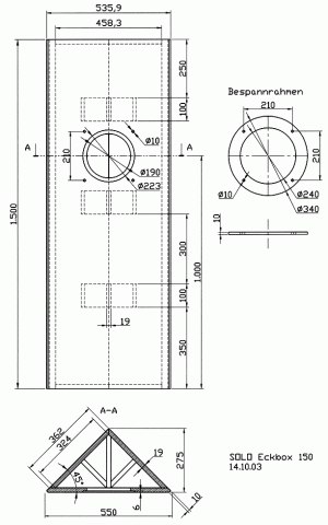
The boards are cut to size, adapted and glued as shown in the drawing. 
The fabric is applied to the ring using an old iron and hot-melt glue or stapled in place. The ring can then be attached to the front panel using the frame plugs. 
No external terminal connections have been included as these cabinets are generally placed right up against the wall. Instead, just drill through the cabinet at a suitable place and feed the cable through the hole. 
You will find additional hints on construction in the Oct. 2003 issue of "Selbst ist der Mann".

Inner damping

The 8 mats of damping material are uniformly distributed in the entire cabinet.

Cabinet parts list for 1 box

Parts
Size (mm)
Quantity
Material: 19 mm MDF or chipboard
Front
1500 x 550
1
Side panels
1500 x 362
2
Top and bottom panels
324 x 324
2
Braces
155.5 x 100
6
Braces
229 x 100
3
Material: 10 mm MDF or chipboard
Grille board
D = 340
1

Crossover

Do you have any questions?

Contact us