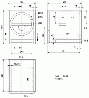
SUB T-25.30
Building instruction
Exploded drawing
Assembly
The cabinet can be built in two stages:
First the cut-to size pieces are butt-glued without the double baffle (outer front panel) and the necessary openings for the woofer and terminals cut out. If an amplifier module is to be used, the cut-out required for fitting it is cut into the rear wall. If no amplifier unit is to be used, fit the ST 77 connection terminal in the rear wall.
Next, the outer front panel can be glued in place. The rounded parts of the bass reflex port are intended to reduce flow noise at higher output levels.
Depending on how the amplifier module is built, it may be necessary to physically separate the loudspeaker space from the amplifier module inside the cabinet. In this case, the cabinet will have to be made larger so as not to steal any space from the woofer enclosure.
Inner damping
The damping material is evenly distributed in the cabinet.
 
          