Do you have any questions?

SUB T-30.60

Building instruction

Explosionszeichnung

Aufbau

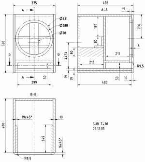
Das Gehäuse besteht aus 19 mm starken auf Stoß verleimten Brettern und einer 16 mm starken Schallwandaufdopplung (äußere Front). Zuerst werden in die Schallwand und die Schallwandaufdopplung die nötigen Ausschnitte gesägt und die Fasen angebracht. 

Beim Aufbau wird mit einer Seitenwand begonnen. Daran werden Front- und Rückseite, Deckel und Tunnelbrett befestigt. Anschließend montiert man die Versteifungen und danach die zweite Seitenwand. Nun legt man das Gehäuse auf den Deckel und leimt die Seiten für den Basstunnel ein. Danach werden die beiden Bodenplatten montiert. Anschließend kann die vorbereitete äußere Front aufgeleimt werden. Die Abrundungen an der Öffnung des Bassreflexkanals sollen Strömungsgeräusch bei höheren Pegeln verringern. 

Bei Verwendung eines Verstärkermoduls wird der für den Einbau nötige Ausschnitt in die Rückwand gesägt. Wird kein Aktivmodul verwendet, baut man in die Rückseite ein Anschlussterminal ST 77 ein. 

Je nach Bauart des Verstärkermoduls kann es notwendig sein, eine räumliche Trennung zwischen Lautsprechervolumen und Verstärkermodul im Gehäuse vorzusehen. In diesem Fall muss das Gehäuse vergrößert werden, um das vorgeschlagenen Volumen für den Tieftöner nicht zu verändern.

Bedämpfung

Das Gehäuse wird mit 6 Matten Dämpfungsmaterial locker bedämpft, wobei der Bereich hinter dem Bassreflextunnel frei bleibt.

Zuschnittliste für 1 Box

Teile
Maße (mm)
Anzahl
Material: 19 mm Spanplatte oder MDF
Seiten
520 x 480
2
Deckel, Böden
337 x 480
3
Front innen
337 x 413
1
Rückwand
337 x 463
1
BR-Kanal Deckel
337 x 230
1
Versteifungen
337 x 80
2
Versteifung
394 x 80
1
Versteifung
212 x 80
1
BR-Kanal Seiten
50 x 249
2
Material: 16 mm Spanplatte oder MDF
Front außen
520 x 375
1

Gehäusezeichnung

Do you have any questions?

Contact us