Do you have any questions?

SOLO 100

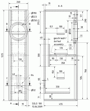
Building instruction

Exploded drawing

Assembly

The ring around the driver is a purely design-orientated enhancement and has no acoustic function. Since wide-range drivers tend to bundle the sound quite noticeably in the medium range, you will not have to worry about the baffle step or indeed any other impairments from the baffle. 

This cabinet will require a certain amount of carpentry skill and experience. You will need to be good at handling a surface milling cutter. If you are not so sure of your abilities, you can make a much easier cabinet. In that case, do without the ring, built a simple cube and add a narrow chamfer along the edges. An alternative, but a more difficult one, would be to make the chamfer wider above and below the driver and have it taper off as it gets near to the driver. Due to the relatively strict beaming of the wide-range speakers, this will have virtually no effect on the acoustic properties.

Inner damping

The inner damping of the two chambers at the top and bottom is a simple matter (see illustration). 
The lower chamber is accessed through the opening in the horizontal partition which is then closed off using the small square panel (170 mm x 170 mm).

The damping of the vertical tunnel, on the other hand, will affect the bass frequency response. Cut one mat (1/2 a bag) along one side in such a way that it is the same width as the inside of the cabinet. Then we pushed the mat into the tunnel from above and about halfway down. This is easily done through the cut-out in the baffle. If you push it down further than halfway, you will get less low-frequency bass (and vice versa). This enables you to fine tune the system to meet the acoustic requirements of the room.

Cabinet parts list for 1 box

Parts
Size (mm)
Quantity
Material: 19 mm MDF or chipboard
Side panels
1225 x 436
2
Front panel
1225 x 222
1
Rear panel
1126 x 222
1
Top panel
417 x 222
1
Bottom panel
436 x 222
1
BR-channel
330 x 222
1
Partition panel
358 x 222
1
Rear channel panel
300 x 222
1
Mounting panels
300 x 222
2
Braces
100 x 222
2
Cover for partition panel
170 x 170
Material: 38 mm MDF or chipboard
Mounting ring
D = 250
1
Material: Triangular ledge
Braces
1187 x 25 x 25
2

Inner damping

Crossover

Do you have any questions?

Contact us