Do you have any questions?

SOLO 50

Art. No. 5986

Building instruction

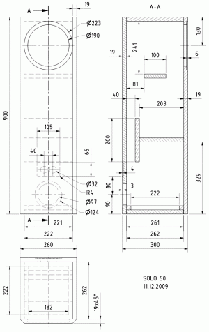
Exploded drawing version 1 (without ring)

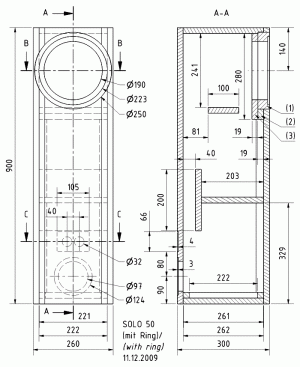
Exploded drawing version 2 (with ring)

Assembly

We suggest two alternative cabinets: 
1) simple cabinet with narrow chamfers on the sides
2) more sophisticated design with a ring round the B 200 - 6 Ohm.
Acoustically, there is hardly likely to be any difference. The second alternative is much more complex to build, though. 

The base is screwed onto a frame and not glued, to enable you to fit the bass reflex tube.

Inner damping

Four mats of damping material are arranged as shown (see drawing). The mat for the inner channel is cut to the width of the cabinet (22 cm) and pushed into the channel flat. The lower mat is rolled lengthways and wrapped around the bass reflex tube but leaving the opening free.

Cabinet parts list for 1 box

1) Version with ring
Parts
Size (mm)
Quantity
Material: 19 mm chipboard or MDF
Rear panel
900 x 260
1
Side panels
900 x 262
2
Front
900 x 222
1
Top, bottom panels, frame
262 x 222
3
Partition panel
203 x 222
1
Rear channel panel
200 x 222
1
Mounting panels
280 x 222
2
Brace
100 x 222
1
Material: 38 mm chipboard or MDF
Mounting ring
D = 250
1
Material: Triangular ledge
Braces
563 x 25 x 25
2
2) Version without ring
Parts
Size (mm)
Quantity
Material: 19 mm chipboard or MDF
Front, rear panels
900 x 260
2
Side panels
900 x 262
2
Top, bottom panels, frame
222 x 262
3
Partition panel
222 x 203
1
Rear channel panel
222 x 200
1
Brace
222 x 100
1

inner damping

Version 2 (with ring)

Version 2 (with ring)

Version 1 (without ring)

Crossover

Do you have any questions?

Contact us