Do you have any questions?

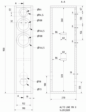
ALTO LINE MK II

Art. No. 5970

Building instruction

Exploded drawing

Assembly

Simply glue the boards together (butt-jointed) as shown in the parts list. After that, cut out the openings for the speaker drivers, the bass reflextube (front) and the terminal connections (rear).

Inner damping

The damping of the cabinet uses three mats of damping material rolled loosely, pushed into the cabinet through a bass opening and arranged uniformly above the bass tube.

Cabinet parts list for 1 box

Parts
Size (mm)
Quantity
Material: 19 mm chipboard or MDF
Front and rear panel
862 x 152
2
Side panel
900 x 270
2
Top and bottom panel
270 x 152
2
Braces
60 x 152
2

Crossover

Do you have any questions?

Contact us