Do you have any questions?

UNI-SUB 30

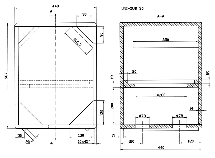
Building instruction

Exploded drawing

Assembly

The UNI-SUB 30 consists of two chambers with two triangular openings each. 

Within the large chamber, the diagonally placed baffles create two tunnels of around 37 cm each. The openings in the smaller chamber are merely cut-throughs in the outer wall (tunnel length 19 mm). The two W 300 S - 8 Ohm are screwed to the two sides of the inner baffle with its circular cut-out of 280 mm diameter. This board is not glued in place but screwed in with the surrounding edging laths. 

The cable to the upper woofer is fed through a hole in the baffle and soldered to the crossover circuit boards along with the cable from the lower woofer. These are then screwed to the base. The base with the openings for the terminals may only be screwed to the cabinet and not glued to ensure that access to the inside of the cabinet is possible.The wiring up of the woofers is critical: the W 300 S - 8 Ohm, whose magnetreaches into the large chamber, must be connected plus to plus (i.e. plus on the crossover to plus on the loudspeaker). 

The other W 300 S - 8 Ohm in the smaller chamber is connected up the other way round. 

It is essential to ensure the main speakers are correctly connected up. If they are connected up incorrectly, the main speakers will counteract the effect of the bass from the subwoofers. 
The shapes of the cabinets and bass reflex vents can be modified to suit personal taste and the surroundings. However, the net volume, surface area and tunnel length of the reflex vents must remain the same. 

For example, two triangular vents can be replaced by one square one with the same area and tunnel length. Large chamber: square vent 80 cm², 37 cm long; small chamber: square vent 170 cm².

Inner damping

Only the larger chamber is damped by placing one bag of material directly over woofer. Ensure the space immediately behind the bass reflex vent remains free.

Cabinet parts list for 1 box

Parts
Size (mm)
Quantity
Material: 19 mm chipboard or MDF
Front and rear panel
402 x 529
2
Side panel
440 x 529
2
Top and bottom panel
Boden und Deckenplatte
2
Inner baffle
402 x 402
1
Tunnel panel
350 x 165
2
Lath
20 x 20 x 402
2
Lath
20 x 20 x 362
2
Triangular lath (base)
20 x 20 x 402
2

Crossover

Do you have any questions?

Contact us