Do you have any questions?

NoBox BB

Building instruction

Exploded drawing

Exploded drawing

Assembly

The panels are cut to size and glued together as shown in the drawing. The crossover can be attached to the rear of the baffle between the loudspeakers, for example, or on the base. The terminal connections are fitted to the vertical panel attached to the base. 

Proposal 2 is more complicated. The edges are embellished with solid wood strips. In addition, a grille frame is included so that the entire front can be covered with fabric (please order separately). The frame is simply forced between the side pieces. The woofer should be recessed by 10 mm so that it does not touch the fabric. 

If critical tube amplifiers are used, the impedance curve should be made more linear (see circuit diagram). The components are mounted on a separate PCB as shown in the circuit diagram and connected upstream of the input to the NoBox BB crossover.

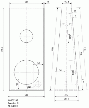
Cabinet parts list for 1 box

Parts
Size (mm)
Quantity
Version 1:
Material: 19 mm chipboard or MDF
Front panel
1210 x 500
1
Bottom panel
325 x 500
1
Side panels
1216 x 355
2
Panel for terminal
150 x 150
1
Version 2:
Material: 19 mm chipboard or MDF
Front panel
1210 x 512
1
Bottom panel
315 x 512
1
Side panels
1186 x 295
2
Panel for terminal
150 x 150
1
Material: Wood strips
Edges
1220 x 30 x 30
4
Upper edges
143 x 30 x 30
2
Material: 10 mm MDF
Frame
1210 x 498
1

Sketch (version 1)

Sketch (version 2)

Sketch (version 2)

Crossover

Impedance linearisation (optional)

Press

Extract from Klang & Ton

"What a surprise! These NoBox speakers are devilishly good. The treat we were offered in our editorial offices left even the most hardened professional testers open-jawed. Although the test results promised us a treat, none of us had really expected to hear such deep, clearly defined and crisp bass. Not once did we feel there was anything missing in the bass department."
"But it is not just the bass that makes this construction stand out - it is more the phenomenal B 200 wide-range speaker which, freed from the restraints of a cabinet, excels beyond compare."
The impression the sound makes is one of freedom and independence with a bass quality which is so good that the lack of sub-double bass is not perceived as a detraction. What really made us sit up and take notice is the unique combination of spatial separation and the phenomenal clarity of the sound picture. The overall impression these NoBox speakers make is less an overbearing, special-effects one than one of unbelievable coolness. The music is simply there, unpretentious and unobtrusive with sufficient objectivity and yet straight to the heart. Brilliant, this has given us a completely new set of impressions from the field of music."

Extract from Stereoplay

Visaton, the only remaining large-scale manufacturer in the German DIY market, has brought together two audiophile concepts here: The NoBox is a combination of the 20 cm full-range driver and 40 cm dipole bass speaker.
In the listening test, the NoBox came out tops in its clear reproduction of the upper frequencies and treated us to far more detail than a speaker without a tweeter should do. The voices were in 3d - in the room with us - and the voice reproduction was absolutely first-rate. The lower-range sound was equally astounding: while we were expecting relatively thin but precise bass ripples we were met by powerful, deep, crisp waves of bass.

Do you have any questions?

Contact us