Do you have any questions?

SKYLINE

Building instruction

Exploded drawing

Assembly

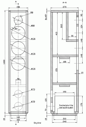
In the rear panel there are two openings. The upper one is the bass port, the lower for the terminals.
If you intend to permanently glue the rear panel, the crossover unit has to be fixed to the base of the cabinet, since it will not fit through the opening in the baffle of the WS 13 BF.
The crossover unit can easily be attached to this board, if a wooden board is attached vertically to the floor of the cabinet (refer to drawing). Ensure, however, that this arrangement does not interfere with the fitting of the bass tube.

Cabinet parts list for 1 box

Parts
Size (mm)
Quantity
Material: 19 mm chipboard or MDF
Front and rear panel
962 x 152
2
Side panel
Seitenwände
2
Top and bottom panel
270 x 152
2
Midrange rear panel
265 x 152
1
Midrange bottom panel
100 x 152
1
Brace
232 x 50
2
Brace
152 x 100
2
Base
240 x 160
1
Crossover base
190 x 170
1

Inner damping

Crossover

Press

Extract from Swedish Audio Video

"We also listened to 'Cantate Domino', a classical Proprius recording that often creates all kinds of problems for many loudspeakers. We selected a short passage with a soprano solo and some organ. The spread was brilliant, as were the highly pleasing ambience and clarity of detail. Chords were very finely resolved. The verdict was "very good", the recording was reproduced very accurately .“

 

One comment among many was: "More music than loudspeaker!“

Do you have any questions?

Contact us