Do you have any questions?

TL-SUB

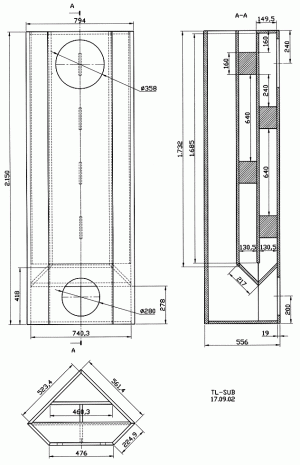
Building instruction

Exploded drawing

Construction

The TL-SUB was designed to be positioned in a corner and, for this reason, has a pentagonal base. The 19 mm sides, front and rear pieces, the dividers and the trapezoidal boards have to be chamfered and the baffle openings cut into the front piece. First of all, the two rear panels are connected to the base and then the two rear dividers and the first trapezoidal board. We recommend laying the subwoofer on its rear edge with appropriate supports. Before mounting the front divider, fix the reinforcing boards to it. Then attach the second trapezoidal board and the side panels and finally the front piece. The opening for the terminal connections can be made at any suitable place.

 

Inner damping

Thanks to the intelligent double transmission line arrangement, damping is not required.

Cabinet parts list for 1 box

Parts
Size (mm)
Quantity
Material: 19 mm chipboard or MDF
Bottom panel
523 x 523
1
Trapezium panel
740 x 217
2
Front panel
476 x 2150
1
Side panel
225 x 2150
2
Rear panel
561 x 2150
2
Partition
460 x 1732
1
Partition
740 x 1685
1
Top panel
740 x 150
1
Brace
160 x 131
4

Press

Extract from HobbyHiFi

"A subwoofer of the quality of the TL-Sub is quite simply pure, unadulterated luxury - not because of the purchase price necessarily, because the price is more than fair even when you include the necessary electronic wizardry." 
"Anyone who has ever heard the TL-Sub in action will know what subterranean bass can really sound like. As car tuners often claim: big engines can only be beaten by even bigger engines. In other words: size does matter."

Do you have any questions?

Contact us