Do you have any questions?

SUB T-40

Building instruction

Exploded drawing

Assembly

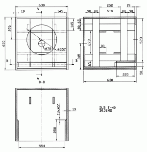
The cabinet consists of 19 mm boards glued together (butt jointed) and a 16 mm double baffle. First of all, make the necessary cut-outs in the baffleand the double baffle and cut the chamfers. 

It is easiest to start with a side-panel. Attach the front and rear panels, the top and tunnel board to this. Then fit the reinforcements and after that the second side panel. Next, place the cabinet on its top and glue the sides for the bass tunnel in position. After that, attach the two base boards followed by the double baffle, in which you will already have prepared the mounts for the TIW 400. 

If the SUB T-40 is to be used with an active subwoofer module, cut the cut-out in the rear panel required for mounting. Next the complete active subwoofer module can be made up. If an amplifier module is not to be used, fit ST 77 terminals in the rear. Finally, connect up the TIW 400 and mount in place.

Inner damping

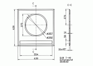
The cabinet uses 14 mats of damping material loosely packed into the cabinet, leaving the area directly behind the bass port free.

Cabinet parts list for 1 box

Parts
Size (mm)
Quantity
Material: 19 mm chipboard or MDF
Front panel
523 x 592
1
Side panel
630 x 630
2
Top and bottom panel
630 x 592
3
Rear panel
592 x 573
1
Bass-reflex channel
592 x 220
1
Lath
50 x 240
2
Brace :
80 x 504
2
Brace :
80 x 573
2
Brace :
80 x 592
8
Material: 16 mm MDF or wood
Double baffle
630 x 630
1

Do you have any questions?

Contact us